







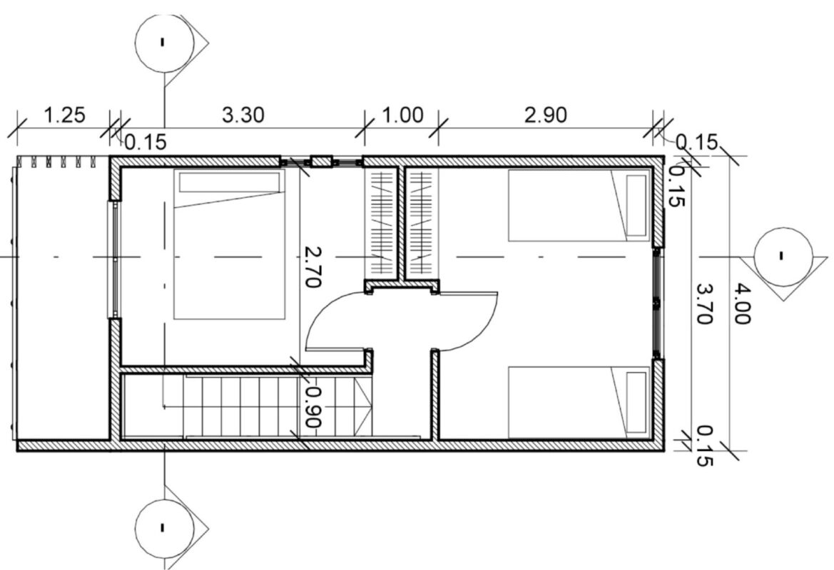
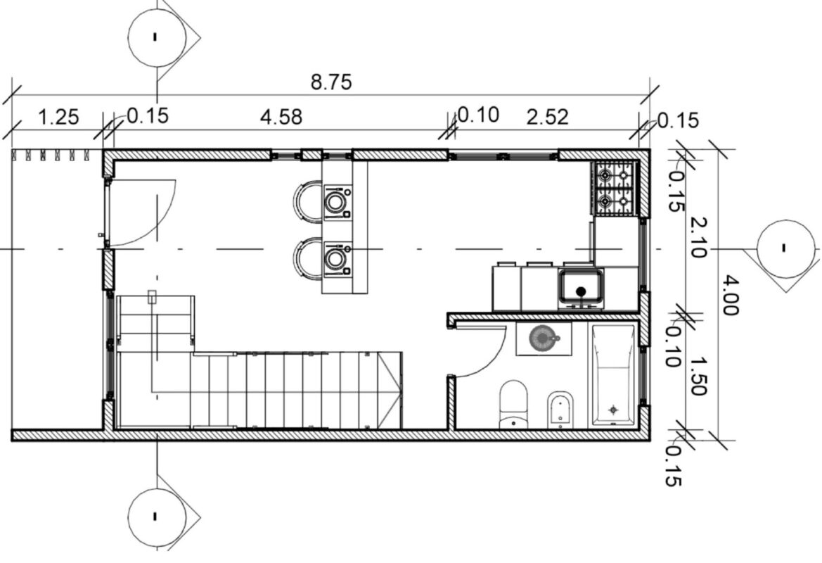
Unidad habitacional ejecutada mediante sistema constructivo en seco con estructura de Steel Framing, compuesta por uno o más niveles, con entrepiso y escalera interior, conforme a las especificaciones técnicas.
ETAPA 1 – ESTRUCTURA Y CIERRE EXTERIOR
La Etapa 1 comprende la ejecución de la estructura principal de la vivienda y su envolvente exterior.
ETAPA 2 – INSTALACIONES Y TERMINACIONES INTERIORES
La Etapa 2 comprende la ejecución de las instalaciones y terminaciones necesarias para la habitabilidad de la vivienda.
direccion:
Isla Soledad 1358, Ushuaia, Tierra del Fuego
Teléfono:
+54 2901 414-391
+54 2901 656-942
E-mail:
contacto@constructorafuieguina.com