





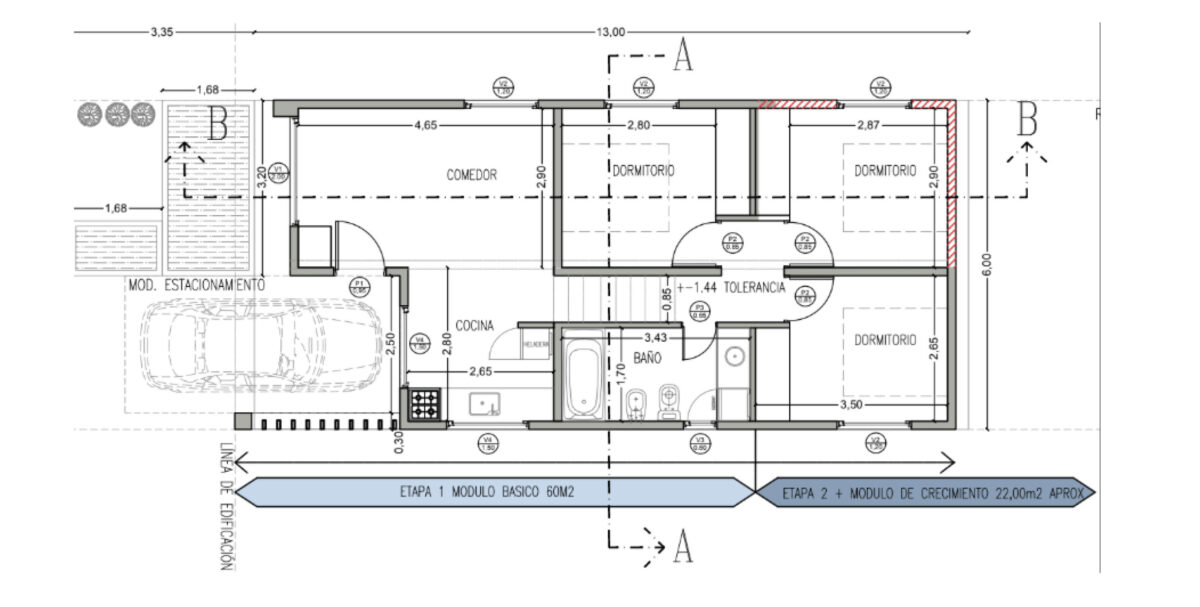
Vivienda familiar de 82m2 posee: 3 dormitorios, cocina comedor, baño – lavadero, garage y acceso con vereda. Posibilidad de ampliación en posteriores etapas de construcción.
Unidad habitacional ejecutada mediante sistema constructivo en seco con estructura metálica tipo Steel Framing, desarrollada sobre platea de hormigón armado,
© Constructora fueguina. Todos los derechos reservados.
Diseño Web: BLP Ingeniería