







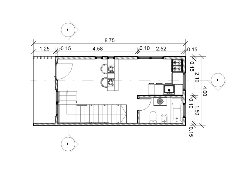
La línea Family House está compuesta por tres modelos de viviendas de 50 m². Estas se desarrollan a partir del monoambiente estándar de la empresa, que cuenta con 25 m², combinando dos módulos para crear distintas configuraciones.
Cada módulo tiene una superficie de 25 m², y su combinación da lugar a tres tipos de casas, según la disposición de los mismos. Estas configuraciones responden a las formas más comunes de organizar los módulos, dando origen a nuestros tres modelos Max Family.
direccion:
Isla Soledad 1358, Ushuaia, Tierra del Fuego
Teléfono:
+54 2901 414-391
+54 2901 656-942
E-mail:
contacto@constructorafuieguina.com
© Constructora fueguina. Todos los derechos reservados.
Diseño Web: BLP Ingeniería